Residential, Lifestyle And Rural Property
FOR SALE $2,350,000 I alex tehfe

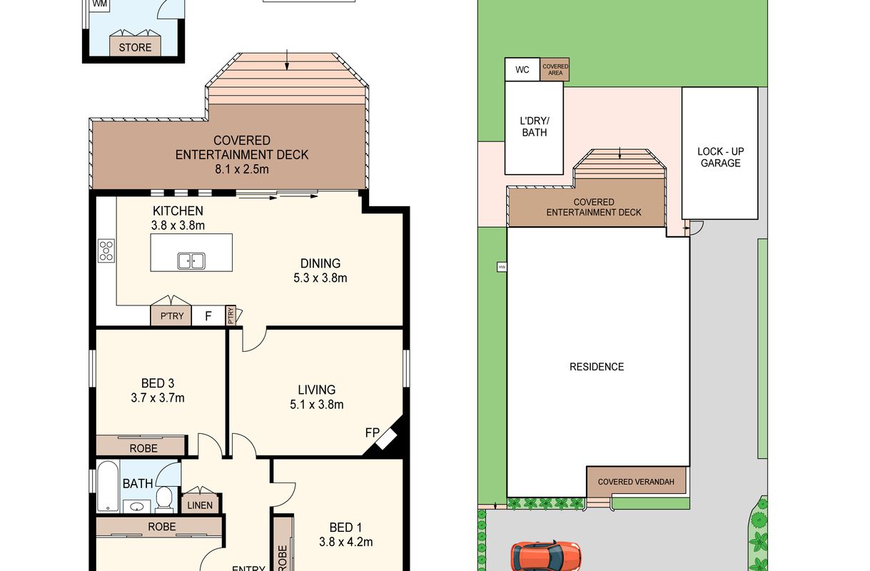
53 HANNAM STREET , Bardwell Valley

For Sale
Property Type: House
3 Beds 1 Bath Approx 722.71 Square metres 4 car spaces

FAMILY HOME OR DUPLEX SITE

Welcome to a prime opportunity in a sought-after location, presenting a full brick residence that will captivate both discerning owner-occupiers and savvy builder. Situated mere moments from Turrella Railway Station and surrounded by essential amenities including shops, parks, and reputable schools, this property offers a blend of convenience and potential.

Explore the potential to develop into a duplex site (Subject to Council Approval), capitalizing on the substantial land area of approximately 722.71m² with an impressive 15.24m frontage, Zoned R3.

The home boasts high ceilings and picture rails, adding a touch of classic elegance to its interiors.
Modern Upgrades: Enjoy contemporary finishes throughout, with a sleek fireplace adding warmth and character to the living spaces.
The perfect aspect, North / South , Timeless Charm

Comfortable Living:
Generously-sized bedrooms feature mirrored built-in wardrobes, formal living , polished timber floor boards, large deck for entertainment, huge backyard. North / south aspect.

Secure Parking:
Benefit from a lock-up garage alongside additional onsite parking, ensuring convenience and security for vehicles.

Embrace a unique opportunity to secure a property that blends modern comforts with future potential. Whether you envision a comfortable family residence or a lucrative development project, this property offers the ideal foundation to achieve your real estate aspirations.

LISTED BY:
ALEX TEHFE
DOMAIN NSW REAL ESTATE ROCKDALE

Disclaimer: All information provided is deemed reliable but not guaranteed. Interested parties should conduct their own due diligence to verify accuracy and suitability for their intended purposes.

Heating & Cooling

  • Air Conditioning

Outdoor Features

  • Courtyard
  • Deck
  • Fully Fenced
  • Outdoor Entertainment Area
  • Secure Parking

Indoor Features

  • Built-in Wardrobes
  • Dishwasher

Location

2018 - 2026 | Domain NSW Real Estate , All Rights Reserved | Privacy Policy. Powered by Eagle Software